3D Design

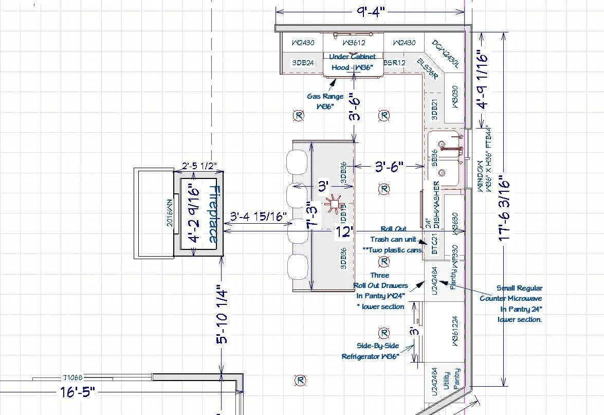
At Tempo Construction Inc., we offer cutting-edge 3D design services to bring your construction or remodeling project to life before the first brick is laid. Using advanced software, we create detailed, lifelike 3D models of your project, allowing you to visualize the final result in a fully immersive way.

Our 3D designs provide an interactive, realistic view of your space, from layout and materials to lighting and finishes. This technology enables you to make informed decisions, adjust plans early in the process, and ensure the design aligns with your vision, saving time and reducing costly changes during construction.

Whether you're remodeling your kitchen, designing your dream home, or planning a commercial space, our 3D design services offer unparalleled clarity and confidence, giving you a comprehensive view of your project before it becomes a reality.